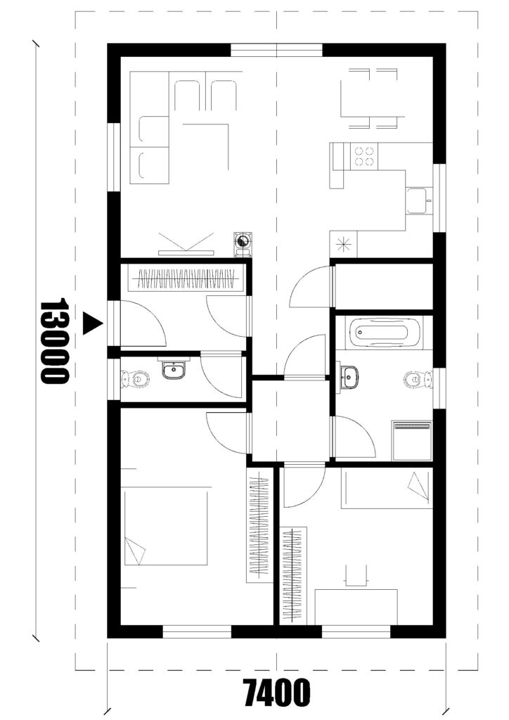
Rodinný dom Jana 91 je ideálne riešenie pre 2 až 3 člennú rodinu. Vstupujeme do malej predsiene, ktorá disponuje samostatným záchodom pre hostí a miestom pre veľkú šatníkovú skriňu. Z predsiene vstupujeme do chodby, ktorá predeľuje jednotlivé zóny v dome. Po ľavici sa nachádza denná zóna domu v ktorej sa nachádza otvorená kuchyňa so špajzou , jedáleň a obývacia izba disponujúca prefabrikovaným krbom. Z dennej zóny sa presunieme do nočnej, ktorá disponuje jednou izbou, spálňou a priestrannou kúpeľňou . V dome sa nachádza povalový výlez pre vstup na plne podchôdznu povalu v rozlohe celého domu. Rodinný dom disponuje našou vlastnou sedlovou strechou. Projekt domu je dostupný aj v zrkadlovom prevedení, v ktorom sú možné väčšie aj menšie úpravy.
























